Proyectos Quienes somos Fábrica Contacto
QUINCHO Y PISCINA

QUINCHO Y PISCINA

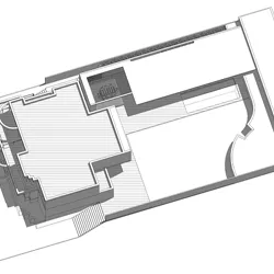
Este proyecto de ampliación y renovación tiene dos áreas principales. La primera es una extensión interna en el segundo piso que aparece como un gran elemento en voladizo en el patio trasero. El segundo es una generosa terraza que contiene un área recreativa para comida y asados con una sala de estar transparente conectada visualmente con la piscina y el jardín existente. La solución fue diseñada en líneas simples que permiten la mayor eficiencia en el uso del espacio disponible y una solución estética ordenada.

El encargo contemplaba una cantidad importante de espacio de almacenamiento. Diseñamos esto a baja altura creando un banco largo que permite la continuidad espacial y visual. Hacia el jardín, hay una transparencia total a través de grandes paneles de vidrio. Junto al límite con el vecino, hay un jardín que crece al nivel del banco. Una ventana baja transluce la luz del exterior creando una sensación de continuidad y desde el techo la luz natural cae a través de un muro flotante.

El espacio intermedio al final contiene el área para comidas y asados. El banco retorna creando una estructura más espaciosa y alta que contiene los utensilios. Todo esto está cubierto con un techo semitransparente hecho de madera natural.

La luz y la materia se encuentran aquí entregando al habitante la experiencia de estar cómodamente conectado con el jardín y el cielo no solo para uso doméstico sino también para fiestas o reuniones.

Material: Madera, acero y vidrio. Área:125 m²

min lorgrove 1 min lorgrove 2 min lorgrove 3 min lorgrove 4 min lorgrove 5

QUINCHO Y PISCINA

Este proyecto de ampliación y renovación tiene dos áreas principales. La primera es una extensión interna en el segundo piso que aparece como un gran elemento en voladizo en el patio trasero. El segundo es una generosa terraza que contiene un área recreativa para comida y asados con una sala de estar transparente conectada visualmente con la piscina y el jardín existente. La solución fue diseñada en líneas simples que permiten la mayor eficiencia en el uso del espacio disponible y una solución estética ordenada. El encargo contemplaba una cantidad importante de espacio de almacenamiento. Diseñamos esto a baja altura creando un banco largo que permite la continuidad espacial y visual. Hacia el jardín, hay una transparencia total a través de grandes

Copyright 2023 - Todas las imágenes y contenidos de este sitio pertenencen a ONEARQ Prop. Ltda.

ESP ENG